BigBear.ai’s ProModel is usable from within the AutoCAD interface.

Complicated, capital-intensive processes would benefit from computer simulation if it wasn’t so difficult to model them. One example is a manufacturing process. If a manufacturing process could be modeled easily, with each station’s capacity and capability known, the production of the whole manufacturing process would be known, too. Production could then be predicted accurately.
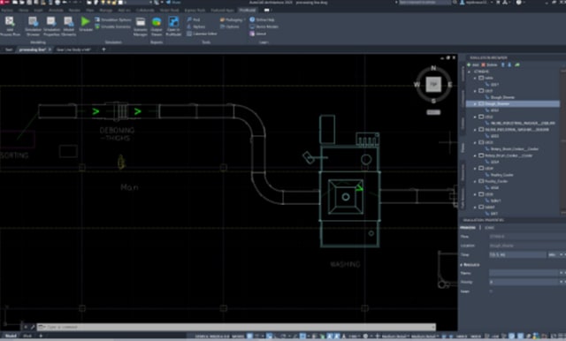
Such is the promise of ProModel now that manufacturing operations can be modeled in AutoCAD.

“Say you need 300 parts made in the next 4 hours,” suggests Mike Jolicoeur of BigBear.ai. “Can your line handle it?”
The question would normally have most manufacturing operators rush to their spreadsheets, or if they are a little more software savvy, their integrated facilities modeling (IFM) applications. Jolicoeur is teaching two classes in optimizing manufacturing facilities at Autodesk University 2022 (“CAD Facilities Layouts Can Be Enterprise Decision Making Tools” and “Discrete Event Simulation and Its Role in IFM”). Both classes explain factory capacity calculation and planning the modern way, with the aid of software made for that purpose (as opposed to using spreadsheets, the most common choice). Jolicoeur suggests that the use of his company’s manufacturing optimization application, ProModel by BigBear.ai, which models factory line components as smart blocks in a diagram.
“We’ve had ProModel for 30 years,” says Jolicoeur. “What’s new is we can show manufacturing event simulation inside of AutoCAD.”
In AutoCAD, ProModel can benefit both traditional manufacturing and the AEC industry now that the industry is moving toward prefabrication and off-site indoor manufacturing environments.
While those who have graduated from using spreadsheets to purpose-built software tools for manufacturing planning already take advantage of IFM, BigBear.ai’s Factory Design Utilities with ProModel’s AutoCAD Edition adds another layer of usability by essentially making CAD a graphical user interface (GUI) to IFM. AutoCAD users will now find it much easier to measure and predict the throughput capabilities of a manufacturing operation
over time – including such considerations as planned or unplanned downtime,
shifts, and time variability in the process. ProModel users will also benefit by
having accurately scaled spatial representation of the equipment on the factory
floor, in the AutoCAD used today for layout, rather than just boxes in a flow
diagram.
“3D comes for free via the Autodesk Factory Design utilities,” says
Jolicoeur.
ProModel users will also benefit by seeing shapes of equipment on a factory floor rather than boxes in a diagram.
ProModel with AutoCAD lets production planning proceed graphically inside AutoCAD. Users can experiment with different layouts and components, noting the time for each part of the process and determining which combination will be the most productive, efficient, and sustainable. A dashboard view lets users compare combinations side by side. Basic questions about space layout (will it fit?), performance (how long will it take?) and ROI (what will it cost?) will be answered.
ProModel installs as a tab on the AutoCAD ribbon and Jolicoeur goes through a couple of examples of the software’s use.
Example 1. Four-Cylinder Engine Assembly

Engine parts modeled with Inventor are to be assembled in a plant that operates on a schedule that has two shifts a day with assemblers making $28 per hour. When the line is operating at 70 percent capacity, it produces 425 engines per shift. When at maximum capacity, 450 engines are produced per shift. With as many as 15 steps in the sequence (depending on whether they pass or fail a leak test), the average process time is about 39 minutes. By experimenting with the layout and making changes to the machines in stations, Jolicoeur shows how 12 more engines can be produced per shift. If each engine generates a profit of $984, the extra engines will return the cost of the changes in 20 days.

A second example showed ProModel used to lower not the cost of manufacturing but the carbon footprint of a gas-fired heat treatment facility. The plant, built in the 1940s when gas was cheap, had to heat treat six product variants, with each requiring a substantial turnover time. Today, the facility processes 84 product variants, fuel costs are through the roof, and everyone is worried about their carbon footprint. ProModel was able to lower changeover time and reduce energy costs by changing to CNC machines with bar feeders and shifting to induction heat treating.